+7 (911) 6000-999
info@feodal53.ru
Великий Новгород,
ул. Кооперативная, д. 7
Главная Дома и коттеджи
д. Горные Морины

Дома и коттеджи

Избранное (0)
Фото объекта
д. Горные Морины
В избранное
Новгородский р-н, Новгородская область
‍8 000 000 ₽

Кадастровый номер: 53:11:1400108:1062

Площадь участка: 12 сот.

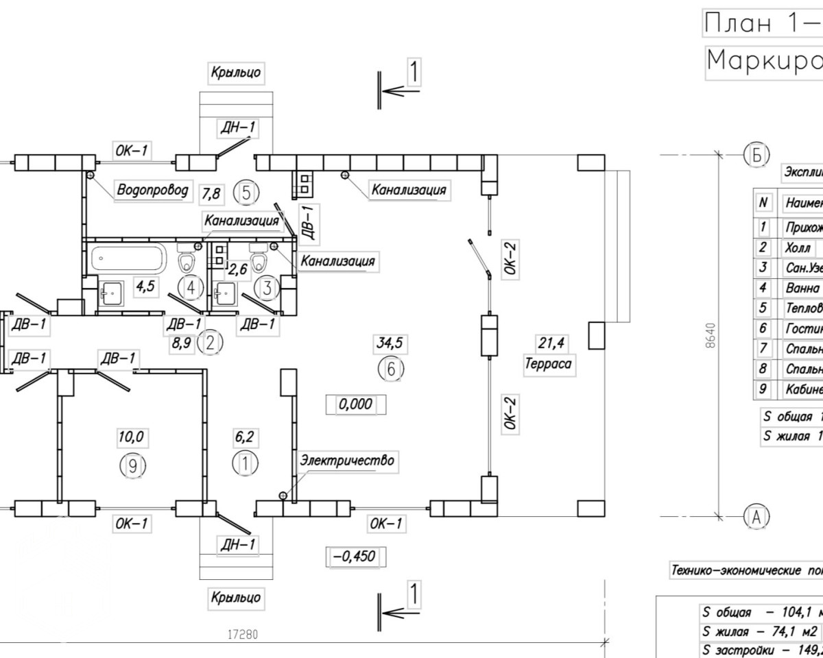
Площадь дома: 149 м2

Удаленность от города: 14 км

Предлагаем к продаже дом в деревне Горные Морины, улица Родная в 14 км от Великого Новгорода.

Дом — одноэтажный, блочный (толщина стен 400, перегородки 150), 2025 года постройки, общая площадь — 149 кв.м, потолки — 2,9 м. В доме 3 спальни, два санузла, большая кухня-гостиная, котельная.

В дом проведено электричество 15 кВт, заведена вода (скважина), есть септик, отопление — тёплые полы.

Участок — 12 соток, есть строительный вагончик, который остаётся в подарок.

Соседи живут круглогодично. До города хорошая асфальтированная дорога, зимой всегда чистят. Продуктовый магазин и автобусная остановка находятся в 200 м, озеро Ильмень в 1,5 км. Газификация деревни планируется в 2027 году.

Участок и дом в собственности, межевание сделано.

Закажите звонок или оставьте нам сообщение
Наш менеджер перезвонит вам или ответит по электронной почте.
Поле Телефон - обязательное
Поле Телефон - обязательное
Нельзя отправить пустое сообщение
или